Pular para o conteúdo principal

Residência de Fazenda 2

Local
Capela do Alto - SP
Ano do projeto
Área construída
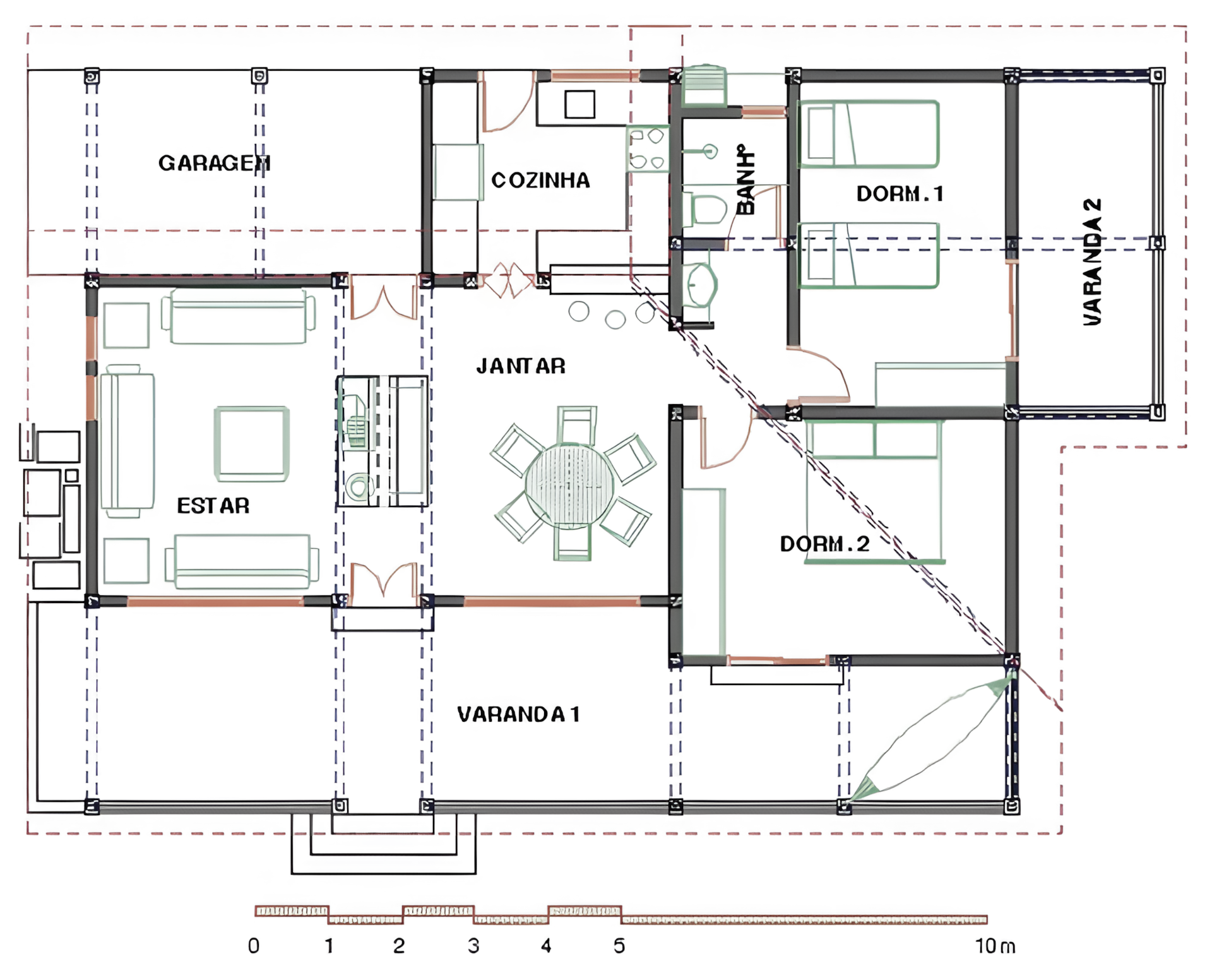
139 m²

Devido a uma diminuição no orçamento da obra, o proprietário pediu um segundo projeto bem mais econômico, mas que ainda assim tivesse alguma semelhança com o projeto anterior (Fazenda 1). Essa casa foi construída com blocos de concreto, que era o material disponível a bons preços na região, e com o qual o construtor já tinha bastante familiaridade. Suas dimensões seguiram o módulo dimensional do bloco, para que não houvesse perdas de material, e as janelas de madeira têm dimensões comerciais.

Compartilhe:
Olá, visitante!

Login